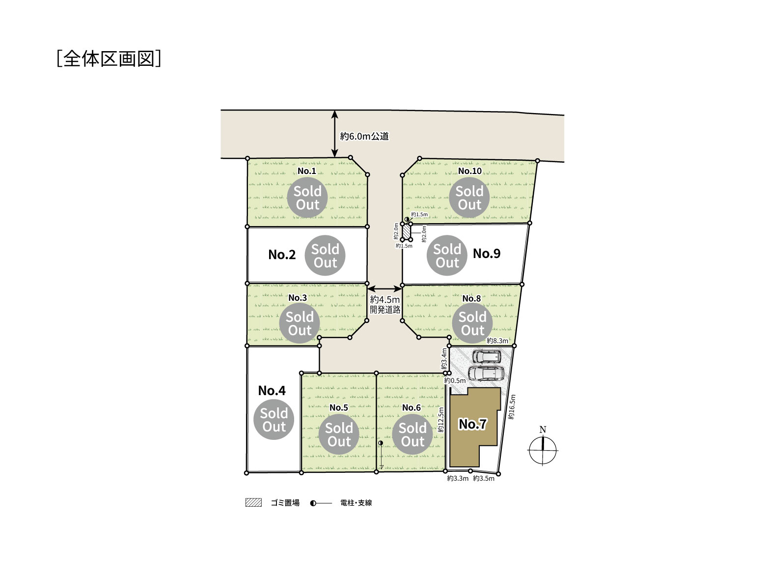
区画図・間取り
物件写真
ポイント
周辺環境
物件概要
【清新6丁目】優れた家事動線と明るい吹き抜けリビングが魅力の住まい。
神奈川県相模原市中央区清新6丁目12以下未定
新築分譲
5,280万円(税込)
優れた家事動線と明るい吹き抜けリビングが魅力の住まい。駅近&買物施設が徒歩5分圏内に揃う、住み良い住宅地。~キレイが続く総タイル貼り。快適・省エネ・ゼロエネルギー住宅~
| 交通 | JR相模線 南橋本駅
徒歩9分 JR横浜線 相模原駅 徒歩22~23分 |
|---|---|
| 販売棟数 | 1棟 |
| 間取り | 4SLDK |
物件写真 住まいの様子
ポイント 住まいの4つのポイント
周辺環境 住まいの所在地とその周辺情報
| 所在地 | 神奈川県相模原市中央区清新6丁目12以下未定 |
|---|---|
| 交通 | JR相模線 南橋本駅
徒歩9分 JR横浜線 相模原駅 徒歩22~23分 |
周辺情報

1
小町通みたけ保育園(約700~735m/徒歩9~10分)

2
清心幼稚園(約850~885m/徒歩11~12分)

3
清新小学校(約700~735m/徒歩9~10分)

4
清新中学校(約900~935m/徒歩12分)

5
ファミリーマート(約270~305m/徒歩4分)

6
角上魚類(約350~385m/徒歩5分)

7
ドラッグセイムス(約350~385m/徒歩5分)

8
コーナン(約750~785m/徒歩10分)

9
相模原清新郵便局(約500~535m/徒歩7分)

10
清新6丁目たけのこ公園(約170~205m/徒歩3分)
物件概要 住まいの概要
| 所在地 | 神奈川県相模原市中央区清新6丁目12以下未定 |
|---|---|
| 交通 | JR相模線 南橋本駅
徒歩9分 JR横浜線 相模原駅 徒歩22~23分 |
| 販売価格 | 5,280万円(税込) |
| 土地面積 | 124.42㎡(37.63坪) |
| 建物面積 | 97.92㎡(29.56坪) |
| 間取り | 4SLDK |
| 構造・規模・階層等 | 木造スレート葺2階建 |
| 接道状況 | 分譲地内約4.5m開発道路 |
| 用途地域 | 第一種住居地域 |
| その他法令制限 | 景観法、準防火地域、都市再生特別措置法、宅地造成及び特定盛土等規制法 |
| 地目 | 雑種地 |
| 駐車場 | あり ※2台駐車可(車種による) |
| 建築確認番号 | 第KBI-SGM25-10-2672号 |
| 建ぺい率 | 60% |
| 容積率 | 180% ※前面道路幅員による制限あり |
| 建築年月 又は完了予定年月 | 2025年12月 |
| 引渡し可能年月 | 2025年12月 |
| 総棟数 | 全10区画 |
| 販売棟数 | 1棟 |
| 敷地権利 | 所有権 |
| 現況 | 建築中 |
| 取引態様、広告主情報など | <取引態様:売主> 株式会社美都住販 宅建業:神奈川県知事(8)第19072号 建設業:神奈川県知事許可(特-5)第57629号 (公社)神奈川県宅地建物取引業協会会員 (公社)全国宅地建物取引業保証協会会員 (公社)首都圏不動産公正取引協議会加盟 |
| 設備 | 東京電力、公営水道・本下水・都市ガス |
| 特記事項、許可など | 開発総面積:1,377.14㎡ 開発許可番号:相模原市指令(開調)第R06-1049号 検査済証番号:第R07-10号 分譲地内開発道路・ゴミ置場(約2.0㎡)は市に移管済 |
| 施工会社 | 株式会社美都住販 |
| 情報公開日 | 2026/02/02 |
| 次回更新予定日 | 2026/03/01 |
| 取引条件の有効期限 | 情報公開月の末日まで |
※価格は物件の代金総額を表示しており、消費税が課税される場合は税込価格です。(税込)・(税抜)が記載されている場合は、表記に従って下さい。
※制作中に内容が変更される場合もありますので、あらかじめご了承ください。
※購入の前には物件内容や契約条件のご確認をお願い致します。
※掲載の完成予想パース・全体区画イメージ図・外構イメージ図・建物配置図は図面を基に描き起こしたもので、実際とは異なります。
※図面と現況が異なる場合は現況優先とさせて頂きます。






































